一、技术名称:钢水真空循环脱气工艺干式(机械)真空系统应用技术
二、技术所属领域及适用范围:钢铁行业 炼钢真空精炼技术领域的 RH、VD 及VOD 工艺
三、与该技术相关的能耗及碳排放现状
目前,国内外的钢水真空循环脱气工艺(RH 工艺)所用真空系统均为湿式真空系统,即多级蒸汽喷射真空泵系统。近年来,国外 VD 及 VOD 工艺有较少部分采用干式机械真空系统,国内尚无先例。湿式真空系统的能耗和水耗约为干式机械真空系统的 10 倍。目前该技术可实现节能量 1 万 tce/a,CO2 减排约 3 万 t/a。
四、技术内容
1.技术原理
钢水真空循环脱气系统工艺(RH 工艺)是一种重要的钢水炉外精炼方法,具有脱气、脱碳、温度补偿、均匀钢水温度及成分、去除钢中夹杂物等功能。由于钢水真空循环脱气系统工艺要求的真空度高、废气量大,因此采用两级罗茨泵串联之后再与干式螺杆泵串联,组成真空泵组。该泵组是一种将罗茨泵与干式泵相结合的机械真空泵系统,利用罗茨泵的超高抽气能力对 RH 工艺废气”增压”来满足高抽气量的要求,利用干式螺杆泵的高压缩比将工艺废气”压缩”至大气压之上后排至大气,并满足快速抽真空的要求。
2.关键技术
(1)满足大型 RH 装置抽气能力的干式机械真空泵组的组态技术;
(2)干式机械真空泵组安全运行技术;
(3)适应 RH 高温、高 CO、含 O2 烟气过滤及除尘系统技术;
(4)干式机械真空泵组与 RH 精炼模式的匹配控制技术。
3.工艺流程
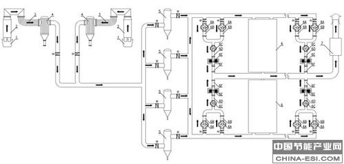
该技术的工艺流程见图 1。
1 钢水包 2 真空槽 3 水冷弯 4 气冷器 5 过滤器 6 真空泵组 6A 罗茨泵
6B 冷却器 6C 罗茨泵 6D 冷却器 6E – 螺杆泵 6F – 冷却器 7 – 废气处理器
图 1 干式机械真空系统流程简图
五、主要技术指标
该技术的主要指标见表 1。
表1 RH 干式机械真空系统主要技术参数

六、技术鉴定、获奖情况及应用现状
该技术已成功申请了 2 项发明专利及 13 项实用新型专利。2011 年,该技术获得中国钢铁协会和中国金属协会颁发的冶金科学技术一等奖,入选《世界金属导报》评出的”2011 世界钢铁工业十大技术要闻”。2012 年,该技术又入选了第十五届北京科博会、中国能源战略高层论坛暨第三届节能中国推介活动评选的”2012 节能中国十大应用新技术”。
目前,210t RH干式机械真空系统已在重钢成功应用,投运以来,系统运行稳定、运行成本低,能耗、水耗较传统的多级蒸汽喷射泵真空系统降低约90%,吨钢节能约9.34kgce。该技术的成功应用,原则上可以实现”取消综合蒸汽管网”,转炉产生的饱和蒸汽回收后可全部用于发电。2012 年6月,山东莱芜钢铁公司也开始在其110t VD装置中采用干式机械真空系统。
七、典型应用案例
典型用户:重庆钢铁(集团)有限责任公司
典型案例 1
技术提供单位:北京世纪源博科技股份有限公司,重庆钢铁集团设计院有限公司
建设规模:与 210t RH 配套、在 67PaA 条件下抽气能力为 800 kg/h(20℃干空气)的干式机械真空系统。主要技改内容:新建干式机械真空系统,与传统的湿式真空系统相比,去掉了蒸汽供应系统(快烧锅炉或饱和蒸汽过热用燃气锅炉)、级间冷凝器、污水、污泥处理系统、庞大的循环冷却水系统。主要设备为气冷器 2 套、粉尘过滤器 4 套、真空泵组 18 套、氮气贮罐 1 台、氮气贮罐 1 台。节能技改投资额 与传统的蒸汽喷射式真空系统相比增加 1750 万元,建设期 8 个月。每年可节能20539tce,年节能经济效益为 1703 万元,投资回收期 1 年。
典型案例 2
技术提供单位:北京世纪源博科技股份有限公司,重庆钢铁集团设计院有限公司
建设规模:与 150t RH 配套,在 67PaA 条件下抽气能力为 507 kg/h(20℃干空气)158的干式机械真空系统。主要技改内容:新建干式机械真空系统,主要设备包括气冷器1 套;粉尘过滤器 3 套;真空泵组 14 套(13 用 1 备);氮气贮罐 2 台;变频器56 台;DCS 控制系统 1 套。节能技改投资额与传统的蒸汽喷射式真空系统相比 增加 1562 万元,建设期 1 年。每年可节能 14207tce,年节能经济效益 1037 万元,投资回收期 1.5 年。
八、推广前景及节能减排潜力
RH 真空精炼装置是钢水二次精炼系统中最为复杂的装置,其废气成分复杂,含有高浓度的 O2 和 CO。截至 2011 年,我国 RH 二次精炼装置总装设台数约有 80余台套,其中重点钢铁企业炉外精炼处理比例 71%。预计未来 5 年,该技术在行业内的推广潜力可达到 10%,预计投资总额 6.6 亿元,年节能能力 8 万 tce/a,二氧化碳减排能力 21 万 tCO2/a。
|